Volám sa Ján Mucha a som realitný maklér so špecializáciou na Bratislavský kraj. Po rokoch strávených ako profesionálny hokejista som svoju energiu a disciplínu preniesol do sveta realít — dynamického prostredia, ktoré si rovnako vyžaduje dôslednosť, stratégiu a schopnosť dotiahnuť veci do víťazného konca. Od roku 2017 pomáham klientom predávať, kupovať a prenajímať nehnuteľnosti najmä v rámci Bratislavy a jej okolia. Zameriavam sa na rodinné domy, byty, pozemky aj investičné nehnuteľnosti, pričom dôraz kladiem na férové jednanie, profesionálny prístup a bezpečný priebeh celej transakcie. Ako niekdajší profesionálny športovec staviam na hodnotách, ktoré ma sprevádzajú celý život — spoľahlivosť, vytrvalosť a zodpovednosť. Mám za sebou aj vlastné investície do nehnuteľností, preto viem presne, čo všetko kúpa či predaj obnáša. Klientom sa snažím byť nielen maklérom, ale aj partnerom a sprievodcom, ktorý im celý proces maximálne uľahčí. Ak hľadáte makléra, ktorý pozná lokálny trh, má skúsenosti, a zároveň pracuje naplno a s ľudským prístupom, rád vám pomôžem.
Veľmi oceňujem kontakt s klientom, rýchla spätná väzba po každej obhliadke a starostlivosť o klienta aj po ukončení obchodného vzťahu.
Pán Mucha bol ústretový a nápomocný. Riešil veci a dvíhal telefón v každú hodinu. Predal nám náš byt za cenu akú sme si nastavili a zároveň mi pomohol aj pri kúpe nového bytu. Na začiatku som mala veľké obavy, nakoľko som predávala byt prvý krát v živote. Ale musím uznať, že pán Mucha ma vždy upokojil a celý priebeh predaja išiel podľa plánu a bez problémov.
S pánom Muchom som bol maximálne spokojný. Exkluzívne zastupovanie predaja nášho bytu bolo pre mňa naozaj bezstarostné. Na začiatku sme si nastavili pravidlá, potom som odovzdal kľúče. Kancelária BROTHERS® nafotila profesionálne nehnuteľnosť, pán Mucha ma vždy informoval o obhliadkach a klientoch. Následne som iba prišiel podpísať RZ a KZ zmluvy a celý predaj prebehol bez problémov a veľmi rýchlo. Odporúčam exkluzívne zastupovanie.
Pán Mucha, s Vašimi službami pri predaji bytu som bola veľmi spokojná, priam nadšená. Vaša práca bola nadštandardná, rýchla a komplexná. Určite do budúcna ak ma niekto osloví, že hľadá makléra na nehnuteľnosti, vrelo Vás odporučím. S pozdravom, Schwarzová. Pekný deň
Ďakujem za veľmi profesionálny prístup. Určite pána Muchu odporúčam a v prípade, že by som potrebovala také služby s dôverou sa na neho obrátim.


















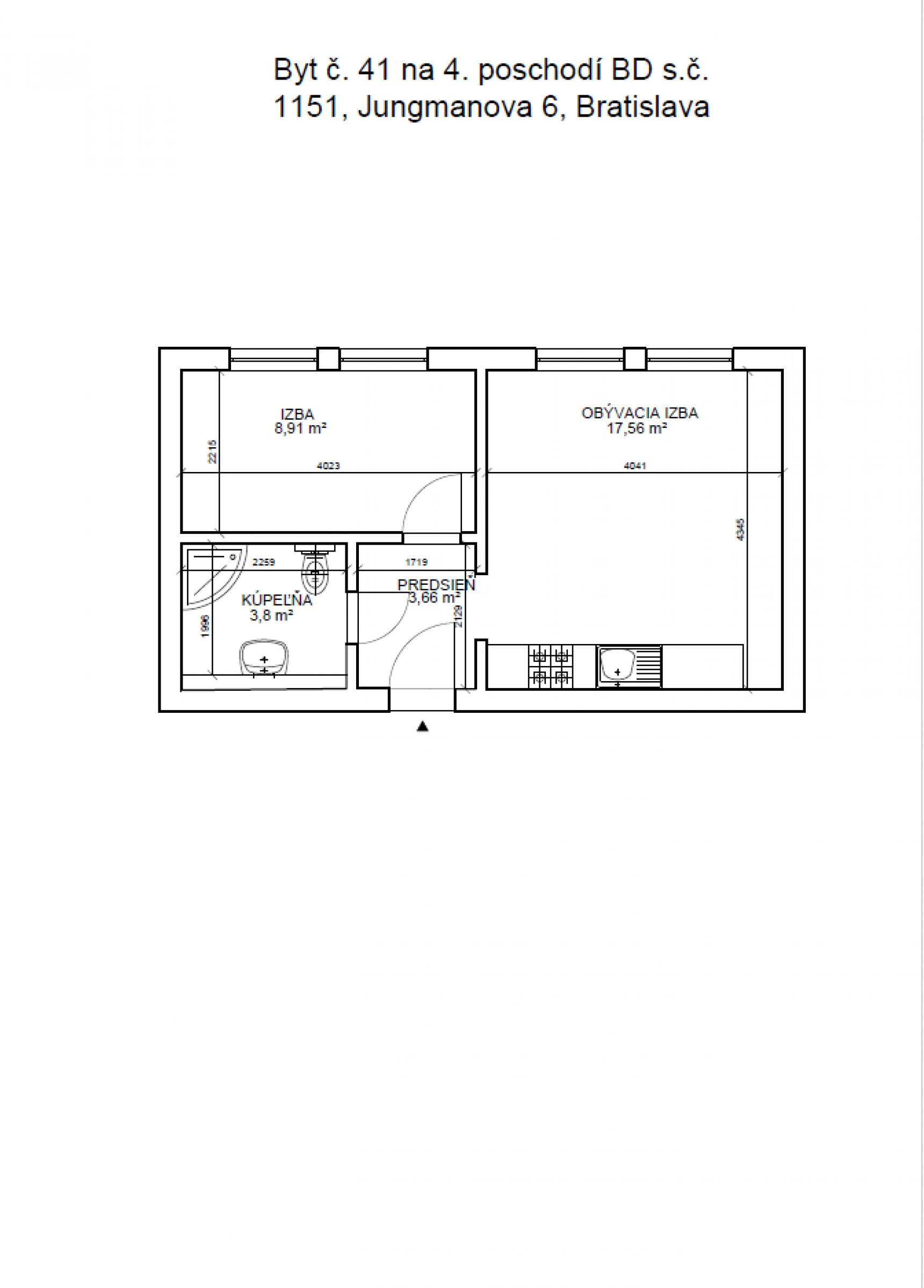
PREDAJ, 2-IZB. BYT, JUNGMANNOVA ULICA, BRATISLAVA V - PETRŽALKA.
Realitná kancelária BROTHERS Vám ponúka exkluzívne na predaj 1,5-izbový byt na Jungmannovej ulici v Bratislave – Petržalka. 1,5-izbový 36 m2 4. poschodie/12 – 2x výťah pivnica na poschodí BYT: Svetlý, veľmi pekne prerobený 1,5-izbový byt sa nachádza v zateplenom panelovom dome na 4. poschodí....
























=PRENAJATÉ= PRENÁJOM V NOVOSTAVBE NOVÁ VAJNORSKÁ, 1-IZB. BYT S BALKÓNOM, VAJNORSKÁ ULICA, BRATISLAVA - NOVÉ MESTO.
Realitná kancelária BROTHERS® Vám ponúka exkluzívne na prenájom moderne zariadený 1-izb. byt s balkónom v novostabe Nová Vajnorská v Bratislave - Nové Mesto. BYT: - byt sa nachádza na 1. poschodí / 12 s výťahom - rozloha bytu je 30 m2 vrátane balkóna - kompletne moderne zariadený - byt je voľný ihne...












PRENÁJOM, 2-IZB. BYT, VAJNORSKÁ ULICA, BRATISLAVA - NOVÉ MESTO.
Realitná kancelária BROTHERS® Vám ponúka exkluzívne na prenájom kompletne zariadený 2-izb. byt na Vajnorskej ulici v Bratislave - Nové Mesto. BYT: - byt sa nachádza na vyvýšenom poschodí / 5 - rozloha bytu je 45 m2 - kompletne zariadený - bytový dom je nanovo zateplený s novou fasádou - byt je voľný...


























NOVOSTAVBA, 4-IZBOVÝ BUNGALOV V MILOSLAVOVE - BÝVANIE V SADOCH, VIŠŇOVÁ ULICA
Realitná kancelária BROTHERS® ponúka exkluzívne na predaj novostavbu rodinného domu – 4 izbový bungalov s nadštandardne veľkým pozemkom v obľúbenej lokalite „Bývanie v sadoch„ v obci Miloslavov. Dom: - je situovaný v tichom prostredí zastavanej oblasti v blízkosti OC Miloslavov s plnou občianskou v...





































PREDAJ, DVOJGENERAČNÝ RODINNÝ DOM SO SAUNOU - 280M2, POZEMOK 1.733M2, OBEC SOBOTIŠTE, OKRES SENICA.
Realitná kancelária BROTHERS® Vám ponúka exkluzívne na predaj dvojgeneračný rodinný dom so saunou v obci Sobotište. RODINNÝ DOM: - dispozične je riešený tak, aby ponúkal komfortné bývanie pre dve generácie alebo možnosť spojenia bývania s podnikaním. - kolaudácia v roku 1991 - obytná plocha: 280 m²...


















PRENÁJOM, TRNAVSKÉ MÝTO, VEĽKOMETRÁŽNY 3 IZBOVÝ BYT , 113M2 , ŠANCOVÁ ULICA, BRATISLAVA - NOVÉ MESTO.
Realitná kancelária BROTHERS® Vám ponúka exkluzívne na prenájom veľkometrážny 3 izbový byt pri Trnavskom mýte na Šancovej ulici, v Bratislave - Nové Mesto. BYT: - byt sa nachádza na 2. poschodí - rozloha bytu je 113m2 - kompletne zariadený - vlastné parkovanie vo vnútrobloku - orientácia na 2 svetov...





























PREDAJ, MODERNÝ 4-IZB BYT S PARKOVACÍM STÁTÍM V NOVOSTAVBE CUBICON GARDENS, 97M2, RUDOLFA MOCKA, BRATISLAVA - KARLOVA VES.
Realitná kancelária BROTHERS® Vám ponúka exkluzívne na predaj moderne zariadený 4-izbový byt s balkónom a garážovým parkovacím státím v CUBICON GARDENS na ulici Rudolfa Mocka v Bratislave - Karlovej Vsi. BYT: - byt sa nachádza v novostavbe CUBICON GARDENS - 4-izbový (3 nepriechodné izby) - 6. poscho...














=PRENAJATÉ= PRENÁJOM, BYT - 1,5 IZBOVÝ, 30M2, ULICA ČSL. PARAŠUTISTOV, BRATISLAVA - NOVÉ MESTO.
Realitná kancelária BROTHERS ponúka exkluzívne na prenájom 1,5 izbový byt na ulici Čsl. parašutistov, v Bratislave - Nové Mesto. BYT: - byt sa nachádza na 2. poschodí (výťah) - rozloha bytu je 30 m2 - kompletne zariadený po rekonštrukcii - byt bude pripravený v druhej polke apríla DISPOZÍCIA BYTU: -...























=PRENAJATÉ= PRENÁJOM, MODERNÝ 2-IZB BYT V NOVOSTAVBE RÍNOK RAČA VOĽNÝ OD 1.9.2025, ULICA FRANTIŠKA KUBU, BRATISLAVA - RAČA.
Realitná kancelária BROTHERS® Vám ponúka exkluzívne na prenájom moderne zariadený 2-izbový byt s balkónom a parkovacím státím na ulici Františka Kubu v Bratislave - Rači. BYT: - byt sa nachádza v novostavbe RÍNOK RAČA - 6. poschodie / 7 s výťahom - rozloha bytu je 55 m2 + balkón 5 m2 + pivničná kobk...